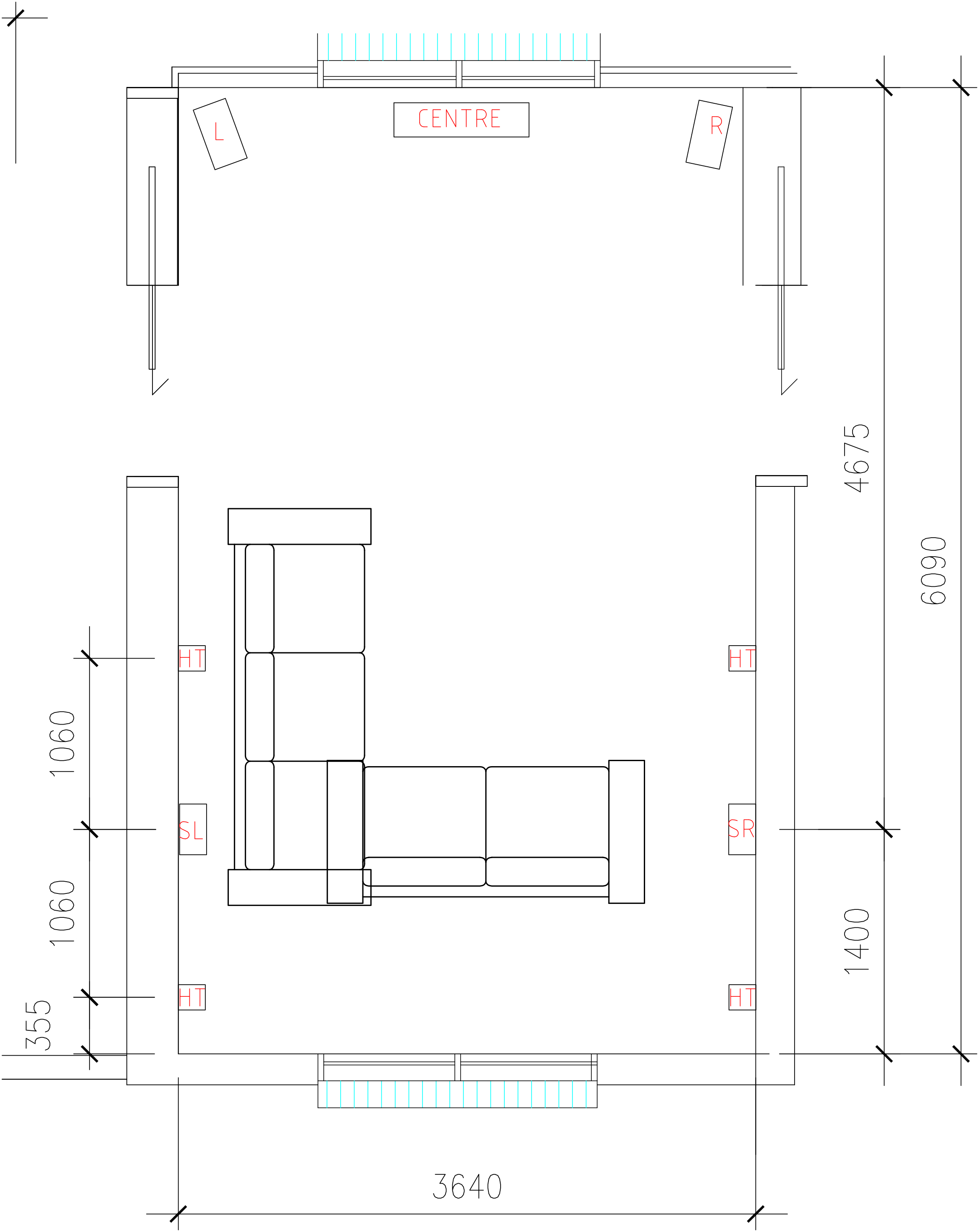
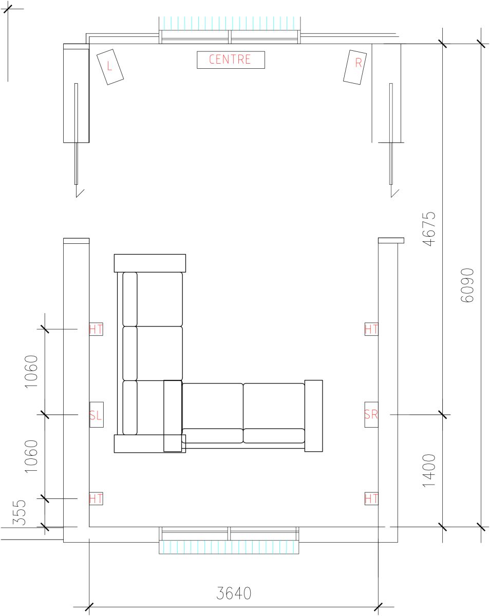
Dolby ATMOS 5.1.4 wall speaker suggestions
Featured Replies
- Prev
- 1
- 2
- Next
- Last page
-
- Prev
- 1
- 2
- Next
- Last page
-
- Share on LinkedIn
- Share on X
- Share on Facebook
- {lang="reddit_text"
- Share via email
- Share on Pinterest
Followers
Recently Browsing 0
- No registered users viewing this page.