Skip to content
View in the app

A better way to browse. Learn more.

StereoNET

A full-screen app on your home screen with push notifications, badges and more.

To install this app on iOS and iPadOS
  1. Tap the Share icon in Safari
  2. Scroll the menu and tap Add to Home Screen.
  3. Tap Add in the top-right corner.
To install this app on Android
  1. Tap the 3-dot menu (⋮) in the top-right corner of the browser.
  2. Tap Add to Home screen or Install app.
  3. Confirm by tapping Install.

My Home Theatre Journey so far...

Featured Replies

I’ve been wanting to write down my home theatre build experience so far for a while now. Maybe it’ll help anyone interested in starting their own journey.

I’m a home theatre enthusiast, not a technical person. If you’re looking for something more technical see this article by Maz4bz on a large part of my build:

https://www.stereonet.com/forums/topic/282701-alpine-12-tapped-horn-home-theatre-subwoofer-build/#comment-4733144

 

Ignorance is bliss

 

Moving into my house more than 15 years ago, I had no idea what was possible. All I knew was that I had a room labelled ‘Theatre’ on the plan, and I was going to use it.

 

Got a couple of floating boxes made up with a space in between to slot in the Panasonic 47” rear projection TV (don’t laugh). Added a Sony 5.1 amplifier, compact speakers, subwoofer, and a PlayStation 3. Thought I was pretty cool connecting everything up with component and optical cables. I loved it!

 

Theatre_Room_Design_v1.thumb.jpg.80541437f53618aa35fffcab0c4fd7d9.jpg

 

Got a taste for it now

 

Several years passed, my collection of Blu-rays is getting serious. I told myself that’ll upgrade the TV when this one dies. Plasma and LCD TVs piqued my interest…still my TV kicked on. Finally, I’d had enough when I saw a 4K TV. I must have one!

 

I settled on a Sony Bravia 75” 4K TV (75X8500D).

 

The TV had to sit on a plank between the cabinets for way too long while I mused over options. Finally settling on a built-in cabinet, the full length of the wall.

 

Theatre_Room_Design_v2.thumb.jpg.f3face2a57577f3f9d6f04082a36d52d.jpg

 

HDMI is a thing

 

The Sony amplifier was okay for its time, but it had no HDMI capabilities. Solution, switch it out for a Pioneer Amplifier (SC-1223). Even with the two extra channels, I left the configuration at a 5.1 with the original speakers. To round things off I finally added a dedicated media player, a Panasonic Blu-ray Twin Tuner HDD Recorder.

 

There’s a problem

 

The TV was awesome, movies looked great, but the sound just didn’t do it for me anymore. After many deep and meaningful discussion with my mate (an audiophile tragic), I settled on upgrading the speakers to a 7.2 configuration, replacing the front L/R with Klipsch K/RP160M and a matching Klipsch Centre (K/RP250C). Then adding in 4 Altronics 6.5” in ceiling speakers for Rear L/R and Centre Rear L/R.

 

Finally, my mate designed two passive subwoofers for me, using Alpine X 12” (X-W12D4) speakers he managed to get hold of second hand, adding a Behringer Ultradrive Pro DCX2496 and Crown XLS2502 amplifier to drive them. The cabinet maker did an awesome job.

 

Sub_Alpine_X_02.thumb.jpg.87b720ee53dadcdf55c5a907747b7f66.jpg

 

This upgrade was significant and now I was starting to understand what a home theatre could be.

 

A taste of bass

 

The bass was key, I was hooked. I needed more!

 

My mate suggested adding another subwoofer. I didn’t even blink, adding a custom-built Dayton 18" Audio passive subwoofer. I now had a 7.3 configuration. It made a significant improvement, but…

 

Sub_Dayton_01.thumb.jpg.dc3c1d43c1bf645b14699ec2e3d35ab6.jpg

 

More power!

 

I needed more. I wanted to feel and experience movies like I’d never experienced before. I’d heard about setups with subwoofers behind chairs to give you that real kick to immerse you in the movie. My buddy and I discussed at length the various issues with the design and cost of trying to fit four speakers behind the recliner chairs. Then came the radical idea of a tapped horn subwoofer.

 

Building one would be significantly cheaper than buying (A Danley DTS20 comes in at around $10K).

 

This was genius, a single speaker with a trumpet-like internal configuration to amplify the sound. The only drawback, it’d be big. We decided to treat it as an experiment. If it didn’t work, we’d be able to salvage parts from the carcase and look at alternative solutions.

 

All in

 

My response was, okay, but let’s build two! I sourced two Alpine R 12” (R-W12D2) speakers and waited impatiently for the results.

 

To drive them I added a Crown XLS1002. I now had a 7.5 configuration.

 

The results were staggering. Its difficult to explain the experience. All I can say is that there’s bass in soundtracks that you didn’t know existed. Using Star Wars as a reference, you feel tension in the scene where Kylo Ren uses the force on Rey in the Force Awakens…and when his lightsaber starts up…wow!

 

I’ve had this setup for a few years now, and it never gets old.

 

Tapped_Horns_01.thumb.jpg.dfdf2b17b2ebd9b642be8d5812f4bc89.jpg

 

Theatre_Room_Design_v5.thumb.jpg.686dc8cab30a5d01d32daf1faa260f3e.jpg

 

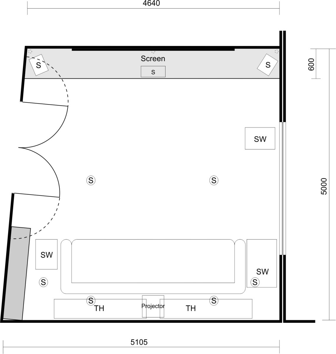
A challenge

 

About a year ago I had a few guys over for a movie night. I was told later that they thought it was the biggest sound experience they’d ever had, with the smallest screen. I couldn’t have that. My mission…go bigger.

 

I dug up anything I could on projectors. One drawback being that they don’t have a built in TV tuner and all the smart TV apps. I looked very seriously at short throw projectors as they have in-built TV tuners. Unfortunately, the short throw isn’t as short as I needed. I just couldn’t fit one on my existing cabinet without a significant rebuild. Finally, I settled on a Sony 4K Projector (VPL-VW-290ES). With a ceiling height of just under 2.8 metres I was able to add a 130” 16:9 screen.

 

I also upgraded the amplifier to a Denon AVC-X3700H, added a Panasonic HDD Recorder (DMR-HWT260), Google TV (has the same Android interface as the Sony TV) and a Sony Ultra HD Blu-ray player (UPB-X800). Finally installing a couple of Polk 6.5” P/V60 in ceiling speakers for ATMOS. The configuration is now 7.5.2.

 

Theatre_Room_Design_v6.thumb.jpg.de730bcc974318049fc1d13469fb87db.jpg

 

Refining the experience

 

The room was never originally designed for this kind of use. It has a large window, a slightly odd shape and glass panel doors.

 

I’ve replaced the carpet with a thicker underlay, added darker curtains, doors seals and added full block-out tint on the doors. As a result, it’s a much quieter room that’s almost completely dark.

 

The Full Setup

 

130" (16:9) screen

Sony 4K projector (VPL-VW290ES)

Denon AV Amplifier (AVC-X3700H)

Behringer Ultradrive Pro (DCX2496)

Crown Amplifier (XLS1002)

Crown Amplifier (XLS2502)

Panasonic HDD Recorder (DMR-HWT260)

Sony Ultra HD Blu-ray player (UPB-X800)

Google TV

Sony PlayStation 5

Klipsch K/RP160M Bookshelf Speakers (Front L/R)

Klipsch K/RP250C Bookshelf Speaker (Centre)

Altronics 6.5” In Ceiling (Rear L/R, Centre Rear L/R) (C0874)

Polk 6.5 In Ceiling L/R (ATMOS) (P/V60)

Alpine Type X 12” - Subwoofer (custom passive) x2 (X-W12D4)

Alpine Type R 12” - Tapped Horn Subwoofer (custom passive) x2 (R-W12D2)

Dayton 18” Audio - Subwoofer (custom passive) (DCS450-4)

Logitech Harmony Elite

 

theatre_01.thumb.jpg.46e5cd1f0d7ca3a210bd68acf44e2356.jpg

 

Lessons Learnt

 

I have to stop myself from going too far…but I’ve probably already crossed than line a long time back. The only thing that’s crossed my mind is adding four more ATMOS speakers, which would require a bigger amplifier (any recommendations welcome).

 

This has been an iterative process over several years. As I had no idea what could be achieved at the beginning, I wouldn’t change anything.

 

Bass is more important than you might think. While you might not go as far as I have, I’d suggest at least two. This’ll smooth things out. And take care where you place your subwoofers, as the right locations will make a huge difference to the result.

 

Consider acoustics with aesthetics. While the audiophile purist will likely try every conceivable trick to keep the sound clean, you should consider the limitations of the room, and its décor. Also, remember, loud isn’t always better. A soundtrack that sounds muddy or harsh isn’t good. If you can, have someone calibrate your sound system and the screen.

 

Use quality components where you can: banana plugs, cables, wall plates. Consider Ethernet instead of Wi-Fi. Think about door and window seals (they can vibrate a fair bit).

 

Finally, I would say if you have the luxury of being able to design from scratch, plan carefully, spend wisely, and have fun doing it.

 

Edited by dejay

A great journey - well done.

 

You might consider painting the ceiling and walls a darker colour - even if just out as far as the cabinet. You'll be surprised how much the image contrast improves.

 

Thanks for sharing. Love it!!!! I get your sub obsession. 

On 23/01/2023 at 1:42 PM, dejay said:

The only thing that’s crossed my mind is adding four more ATMOS speakers, which would require a bigger amplifier (any recommendations welcome).

 

Great write up dejay  :)

 

Ideally, your side surround speakers would be at or a bit above ear level, 10 degrees behind the listening position.

 

This would leave you with 4 in ceiling speakers that could be configured with your current amp to a 5.5.4 setup.  Your surround back speakers become Top rears. 

 

If you can't accommodate ear level side surround speakers, just enjoy what you have  :)

On 23/1/2023 at 2:52 PM, Quark said:

 

You might consider painting the ceiling and walls a darker colour - even if just out as far as the cabinet. You'll be surprised how much the image contrast improves.

 

This made the biggest difference for me.  Day and night - excuse the pun.

 

And maybe consider a curtain to pull across the doors, to match the opposite wall.

 

some suggestions based on above ideas and own use in 2 entry level HT rooms.

 

room colours need changing, sorry for being blunt. it looks like a "nice" room with the lights on but not as good as it should look with the lights off and a movie on. darken the ceiling, all of it and contrast the side/screen wall. maybe some blues,? or wine red and charcoal combo? anyway NO light colours and flat paint. if thats not possible the front screen wall, ceiling and side walls out to the start of that left side door frame., sort of "framing" the front stage (but still adding a darker tone colour to the rest. it makes a huge difference to perception. (recently in my small, 2nd ht room, i lined all the walls,ceiling with Big W matt black cotton sheets and it "draws" your attention to the screen and no where else, also cheap. not saying every one cup of tea but its the principle at play of focusing your eyes to the screen)

 

denon 3700.. if it works keep it, dump the "7" bed layer for 5 and have 4 height/in ceiling speakers. the rears are a waste in that seating position (been there done that) so no need to change avr. )

 

subs.. fantastic but how is the x3700 with 2 sub outs running 5 subs.. splitters?

 

ok sorry for this but i would remove the cabinet, increase screen size to 140" ,, you are getting reflections off that cabinet, along with walls etc. if you look at HT rooms with A/T screens you see how "clean" the front stage is, that for me is the look you should be after. the small books will hide in the darkness. you can still keep the front stage at seated ear level, as it seems to be now, but once you see a black front stage in real life you wont realise how much better it is.

 

actually the cabinet might be ok if it was painted if/when you change the front stage colours, so it hides. also that centre, too small imo and modifying the cabinet/removing might allow for a better centre. the books are fine but the centre does 65% of the work and the rp250 is smaller than the books. i run old klipsch rf-3's with a rc-7  or a psa mtm210 (i get bored and change around things a bit), bigger is better from my use.

 

curtains are underrated and as a kid always use to be in the cinemas i went to, my main ht room under rebuild had full length side/rear wall curtains. an easy cinema feel addition.

 

anyway just some ideas and no offence meant

 

 

  • Author

Thanks hopefullguy for the info...some pretty useful stuff there. I will say the room has always been a compromise, as it needs to fit within the aesthetic of the house (wifey needs to be pleased 😉). The sheets on the wall while probably very effective, simply wouldn't make the cut. Next house will have a purpose built room from the ground up.

 

In response to the Subs question. The setup has a single line running out to a Behringer Ultradrive Pro & x2 Crown amps. The Denon doesn't flinch. Sounds clean and pushes out around 3,500 wrms of sub goodness very efficiently and cleanly. The experience is other worldly!

Edited by dejay

  • 4 months later...
  • Author

A few updates since my last post:

 

Switched out the Google TV for a Nvidia Shield 4K. I just didn't like the fact the Google TV didn't have an ethernet connection natively.

Also added a roller shutter on the window, as the curtains while a great improvement, still bled light into the room.

 

Theatre_Jun2023.thumb.jpg.068e67e7f6df0d5c847c7a2007c08a66.jpg

 

hla3nzcr.png.d1b3d7b4ea8035667843f4e7cfa50d78.png

 

Enjoyed your story - well told and lots of good info. Thanks for sharing.

Recently Browsing 0

  • No registered users viewing this page.

Account

Navigation

Search

Search

Configure browser push notifications

Chrome (Android)
  1. Tap the lock icon next to the address bar.
  2. Tap Permissions → Notifications.
  3. Adjust your preference.
Chrome (Desktop)
  1. Click the padlock icon in the address bar.
  2. Select Site settings.
  3. Find Notifications and adjust your preference.