Skip to content
View in the app

A better way to browse. Learn more.

StereoNET

A full-screen app on your home screen with push notifications, badges and more.

To install this app on iOS and iPadOS
  1. Tap the Share icon in Safari
  2. Scroll the menu and tap Add to Home Screen.
  3. Tap Add in the top-right corner.
To install this app on Android
  1. Tap the 3-dot menu (⋮) in the top-right corner of the browser.
  2. Tap Add to Home screen or Install app.
  3. Confirm by tapping Install.

WasM's HT Room

Featured Replies

Hi all,

 

Been trawling through the forums and thought it was about time I contributed, having learnt so much from contributors in DTV days through to now. Awesome community.

 

A few years back started plans for a new house and managed to 'squeeze' the room into the design without too many compromises. It was always planned to have a dedicated theatre so I did a bit of research and visiting some local places gave enough ideas and planning to include in the build.

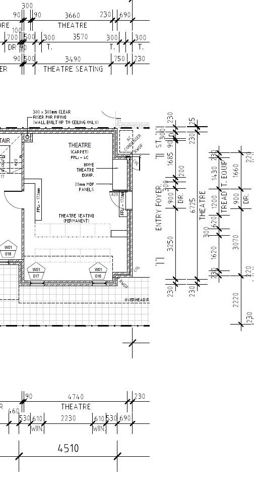
The finished room measures 4070mm across the front, opens to 4760mm at the rear, 6725mm long, 3000mm height at the front seats, 2650mm at the rear riser seats.

I allocated space for a dedicated equipment rack and had speaker cabling done to allow 7.2.4 surround setup.

I considered many bulkhead designs and opted for a drop bulk head at the front to allow some plumbing from upstairs to route through, and also allows an area to mask and hang curtains. This then gave me room to put speakers (and junk) behind an AT screen.

Rather than a perimeter bulkhead I did a 'reverse' bulkhead which gave me the ability to route ducted A/C directly to the seating area, LED around the bulkhead perimeter, general lighting and more importantly the 4 ceiling speakers.

 

Theatre.jpg.6a94d1e4877a2f111a4ed34e45c7429a.jpg

511283418_Theatrelayoutcrop.jpg.2ac980d6ee956bde1c71c93e0db01823.jpg

 

Shot of the theatre slab looking from the front to the back. You can see where formwork for the rear riser steps runs.

I deliberately sunk the theatre to gain the extra height for the riser steps and the dropped bulkhead.

20150802_163804.thumb.jpg.6ac11935a40fef5fe885bc5ae30fd305.jpg

 

Edited by WasM
pics

  • Author

Sinking the slab is it seems to better absorb the bass and together with double brick cavity construction its fairly muted standing outside, even when cranked right up.

 

Shot of the front wall/bulkhead. Holes for 3 x LCR speakers, Sub1 and wall plate for power.

20160614_075737.thumb.jpg.0cd53c70c2b993ee9016af56a2835077.jpg

 

Rear wall with awning style windows. You can just see the reverse bulkhead, A/C duct and cabling. At the top middle is HDMI, CAT6 and wall plate power. The bottom leftish of photo is wall plate for power and Sub2

20160614_075832.thumb.jpg.2d57d09941456bf76a4de840a2ba8c94.jpg

 

I also ran 2 x Cat6 into the riser slab. It sticks out in the middle of the first row of seating. I missed taking a photo of the riser slab and cables. This allows for connection, using USB baluns, to connect USB devices directly back to the equipment rack, and into an Xbox. I'm now using it to connect a racing wheel/chair without having cables strewn across the theatre floor.

 

I should have taken more photos during construction but here are some more recent shots.

Speakers and screen in temporary setup.

20180724_122204.thumb.jpg.be5819f7d290d953c73132b13a895581.jpg

 

Unboxing SVS sub. I had a bit of trouble but I managed to wrangle this thing by myself into the room. The carpet helped.

20180811_101133.thumb.jpg.808fd86ef41a1878751b791b84ea0516.jpg

20180811_103336.thumb.jpg.94640f72d735d78c71a40cc643a5c67d.jpg

20180811_103314.thumb.jpg.dfb8517527ee328e235c166ef9b949d8.jpg

 

Edited by WasM
pics

  • Author

DIY front wall treated with elchepo 'acoustic foam'. Speakers elevated with elcheapo stands.

20180817_065717.thumb.jpg.bafc6466682c7d0666242df45d9015ee.jpg

 

Rear shot showing 8 seats and rear stand for projector.

20180811_101159.thumb.jpg.01e082e75cd6fe85db8ed2a73c40816b.jpg

 

Screen back up

20180820_075331.thumb.jpg.f46f70ed9cb2e3bcb354a9a0e2b726f0.jpg

 

Curtains up. Made up some DIY acoustic wall panels with Polymax 50mm sheets. Doubled them over and wrapped them in black cotton.

20190130_204851.thumb.jpg.792f6f5c8c4ea176afb0424aac185e1d.jpg

20190130_205037.thumb.jpg.888c49ffce1f18d12ba51e50c0f42d08.jpg

20190130_205007.thumb.jpg.c9c2d688fc0b2d398a5a2f898e219adf.jpg

20190130_205020.thumb.jpg.312f29f3819bc176823dbcf1a9e4c1d7.jpg

 

In-ceilings

20190130_205138.thumb.jpg.f11a3e5fe5f8e7f1d778cd230b4a90a9.jpg

Edited by WasM

  • Author

Equipment

3 x SLS Audio (Dolby) CS50 LCR speakers

4 x SLS Audio (Dolby) CS850S Surround speakers

4 x Klipsch CDT-3800 II in-ceiling speakers

1 x SVS SB-16 Subwoofer

1 x SVS PB-4000 Subwoofer

Denon 6300H AVR

Emotiva XPA-7 amplifier

DIY HTPC

Minix UH-9 with remote

Xbox One X

Old Sony AW10 Projector

OZTS 150" AT 2:35 4K screen

12 gauge speaker and Cat6 cabling

1 x custom DIY LED kit with remote

 

Subs tuned using U-mik and MSO software for even bass across 6 of the 8 seats. Money seat is the front row 2nd seat from the left (when looking at the screen).

Patiently waiting for upgrade to 4K projector.

Edited by WasM

Hi,

Looks really cool. 

It's a good idea to drop floor level below ground level, the problem is that the part of a external wall that is below ground level needs to be treated as a retaining wall. Unfortunately most builders don't pay enough attention to retaining walls. 

  • Author
44 minutes ago, Irek said:

Hi,

Looks really cool. 

It's a good idea to drop floor level below ground level, the problem is that the part of a external wall that is below ground level needs to be treated as a retaining wall. Unfortunately most builders don't pay enough attention to retaining walls. 

Yes - that was my main concern, plus settlement cracks along the joining wall/floor perimeter. Builder did apply the bitumastic sealant around and applied the termite mesh treatment so all good.

 

For those who are considering a dedicated room and are not sure about screen size (projector or TV) I have the following advice. Use some math and draw up the dimensions vs the seating position (plenty of well known and documented calculators out there). Then do a mock up of the screen using cardboard/cloth and other material. I was fortunate enough to have a projector and temporarily watched a few movies, of various ratios, projected onto the blank wall before I decided on a 2:40 screen and 150". I had originally opted for 130" but after a few weeks the size zoomed out to 150" was perfect.

  • 2 months later...

Damn, that looks awesome! What's the logic behind having two different subwoofers (sealed and vented)?

 

I only recently started using a subwoofer and am blown away by how balanced it sounds with Audyssey applied!

  • Author
2 hours ago, nedrum said:

Damn, that looks awesome! What's the logic behind having two different subwoofers (sealed and vented)?

 

I only recently started using a subwoofer and am blown away by how balanced it sounds with Audyssey applied!

The plan was always for at least two subs.

After house construction I was keen to understand the room response and did not want to over commit on 2 x large subs (or more), thus opted to take incremental steps and bought the sealed 16" to start. I did some basic positioning and measurement checks, then settled on the best position for the single sealed unit. The 16" was dialled in at around -16dB to suit the room at that stage. It was tight and punchy and gave the wham but didn't extend much below 22Hz in room. I took a judgement call and opted for a 'smaller' sub - the 13" but ported. The key things I thought at that time:

  • I didn't need to get another 16" as power was plenty already and it hit hard enough for what I was measuring and feeling, extra headroom was there. Spending on another 16" only to dial that to -22dB does not make sense.
  • The second sub should get more even distribution through more listening positions but I was aware of the low end <20Hz deficit. The SVS published frequency data was believable based on checking the 16" so I trusted the 13" data on the published low extension.
  • The ported unit gave more flexibility in configuration compared to another sealed unit, and if needed I could plug all the ports to act as a sealed unit. However, I did find a big difference in capability between the 16" sealed vs the 13" ported in 'sealed' mode. 13" was good but could not catch the dedicated sealed unit in tightness and 'breadth'. I would not consider the ported unit 'musically' inclined. The POWER in the 16" is effortless.
  • I picked up the 16" on a good sale before pricing went up. I bought the ported unit about 8 months after pricing went up (by alot). It was a value consideration at that time for smaller subs or 2 x smaller subs but in the end I realised I wanted needed the onboard DSP without having to go to external DSP. Internal sub DSP at the time was only available on the 13" units and up.

Long and short of it I was careful in my consideration and allowed time for tweaking, gave me the flexibility of room tuning. I got a hold of the MSO program and that made the biggest difference and it was 'free'. Free in the sense it didn't cost $ but it does cost time. If you don't have the care and patience don't expect to get the results, or you pay a professional to do it for you.

This is now my new hobby. ?

Thanks for the thoughtful response. Learning all this new stuff is the best part of it!

  • Author
1 hour ago, nedrum said:

Thanks for the thoughtful response. Learning all this new stuff is the best part of it!

Its a fantastic learning journey. I'm happy to field any queries to assist in your journey.

 

I've realised recently with the change in weather the sound is also changing. My new go to demo is the latest animated Spiderman flick. The cooler temps seems to give a 'fuller' sound. Not sure what to call it, or why it sounds different. The lower temps means slower travel of sound waves but all being relative it shouldn't really sound different. 

 

the colour of the walls and ceiling? usually dedicated room will not be so lightly coloured

  • Author

I did think about painting the room a darker colour. I find watching movies in commercial cinemas tiring to the eyes, not that i'm not enjoying the movie or presentation. The longer the movie (say 3 hour LOTR:ROTK) the more tiring my eyes got, especially when leaving and returning to normal light.

At a time before I had the dedicated screen up I projected onto the bare wall and realised it was less straining to my eyes, and could sustain watching 2 movies back to back. This made me rethink the contrast - do I want more dynamic pop in viewing at the suffering of my eyes, or less pop with no tired eyes. I opted for the latter...

  • 7 months later...
  • Author

Time for a new toy. Jumping from 720p to 4K. The difference is huge to say the least. 

 

20191204_152113-2.thumb.jpg.0f975e165ef30fc280c25eeed40fd92e.jpg

 

20191204_152053-2.thumb.jpg.cbd7ee5ba47e235b6d355434527e52ae.jpg

  • 2 weeks later...

Hello there,

I sometimes think about jumping from 1080p to 4K, but I wonder whether the difference is going to be all that noticeable. However, I never think of 720p as being much different from 1080p...

Regards,
Grant

 

Edited by Grant Slack

  • Author
1 hour ago, Grant Slack said:

Hello there,

I sometimes think about jumping from 1080p to 4K, but I wonder whether the difference is going to be all that noticeable. However, I never think of 720p as being much different from 1080p...

Regards,
Grant

 

It's a big jump in detail and colour that's for sure. Each to their own but at 150" scope screen I needed as much light and detail as I could get.

The biggest difference seems to be on quality source material, so if you watch mixed media (FTA TV, DVD, 1080BR) 1080i/p the gains are marginal.

  • 3 years later...
  • Author

Equipment updates in bold

2 x Eve Audio SC4070 Active Studio Monitors (Left, Right)

Decommissioned 2 x SLS Audio CS50 (previous L, R speaker - looking to repurpose as front heights, need 13.2 processor)

1 x SLS Audio (Dolby) CS50 LCR speaker (Center)

4 x SLS Audio (Dolby) CS850S Surround speakers

4 x Klipsch CDT-3800 II in-ceiling speakers

1 x SVS SB-16 Subwoofer

1 x SVS PB-4000 Subwoofer

Denon 6300H AVR

Emotiva XPA-7 amplifier

Minix UH-9 with remote

Xbox One X

Decommissioned HTPC

JVC N7 Projector

OZTS 150" AT 2:35 4K screen

12 gauge speaker and Cat6 cabling

1 x custom DIY LED kit with remote

Google Chromecast with Google TV

Innuos Zen Mk3 - Mogami Gold to Eve Audio

SMSL SU-10 DAC - USB-C to Innuos

Minidsp UMIK-1

 

Best of both worlds in terms of music system and HT system.

Edited by WasM

  • 1 year later...
  • Author

Latest additions change:

Mutec MC3+ USB reclocker.

Mutec REF10 Nano Master clock.

Viborg silver BNC 75 Ohm cable

Viborg silver AES cable

 

2 channel setup is now: Innous Zen Mk3 >> USB2 A-B cable >> Mutec MC3+ (with external Nano master clock via silver BNC cable) >> Silver AES cable >> SMSL SU-10 >> Mogami Gold XLR >> Eve Audio SC4070

Recently Browsing 0

  • No registered users viewing this page.

Account

Navigation

Search

Search

Configure browser push notifications

Chrome (Android)
  1. Tap the lock icon next to the address bar.
  2. Tap Permissions → Notifications.
  3. Adjust your preference.
Chrome (Desktop)
  1. Click the padlock icon in the address bar.
  2. Select Site settings.
  3. Find Notifications and adjust your preference.